将新建翔云道(唐丰路-铁西路)与铁西路(唐通路-谊园道)
唐山信息港 发表于:2023-4-8 21:56 复制链接 看图 发表新帖
阅读数:7019

翔云道(唐丰路-铁西路)道路工程批前公示

建设项目名称:翔云道(唐丰路-铁西路)道路工程

建设项目位置:翔云道(唐丰路-铁西路)

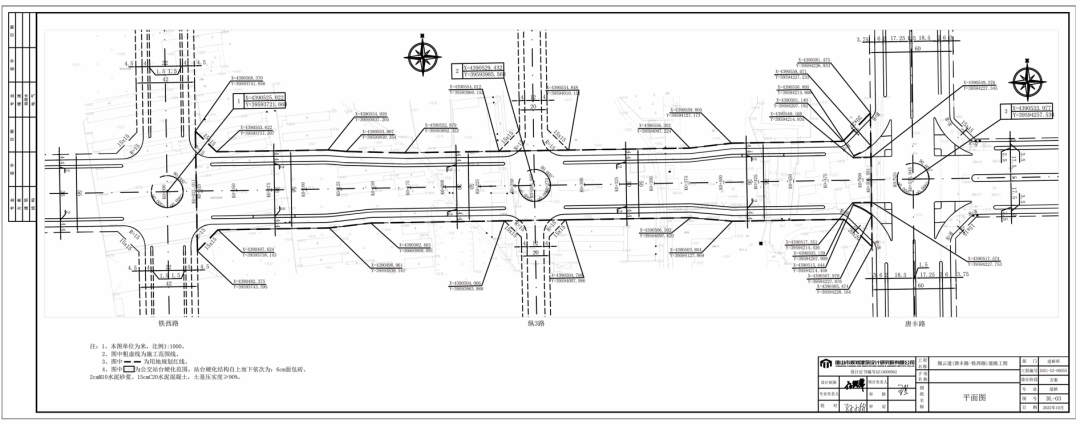
建设规模:翔云道(唐丰路-铁西路)道路工程,西起铁西路,东至唐丰路,道路全长535.89米,为东西走向的城市主干路。三块板道路型式,双向八车道,红线宽50米,标准断面为(2米人行道+2米行道树)+4米非机动车道+2米绿化设施带+30米机动车道+2米绿化设施带+4米非机动车道+(2米行道树+2米人行道)。

50195377_b69c01e6-ae56-489a-b978-5f8d94a24013copy.png

50195377_07409e06-b3e9-48ba-8347-963a00c7657fcopy.png

50195377_7f4e5400-3204-455b-a99b-0881a60b4430copy.png

50195377_29fc5bd8-b24a-4537-975f-e1c37c3d03e7copy.png

铁西路(唐通路-谊园道)道路工程批前公示

建设项目名称:铁西路(唐通路-谊园道)道路工程

建设项目位置:铁西路(唐通路-谊园道)

建设规模:铁西路(唐通路-谊园道)道路工程,北起唐通路,南至谊园道,道路全长1978.524米,为南北走向的城市次干路。三块板道路型式,双向四车道,红线宽36米,标准断面为4.5米人行道+4.0米非机动车道+1.5米绿化设施带+16米行车道+1.5米绿化设施带+4.0米非机动车道+4.5米人行道。

50195377_c9192689-1da6-4ed7-8f41-3377ac7a371bcopy.png

50195377_a2df5b7e-289c-4db5-b0c1-e2d1db7b2cfbcopy.png

50195377_dc71760c-395f-44da-b867-48fe1b7794cacopy.png

50195377_161fc15c-c1d8-4972-a2b8-a56d9b576b07copy.png

来源: 中国唐山
返回列表 使用道具 举报
条评论
您需要登录后才可以回帖 登录 | 立即注册
相关推荐
©2001-2021 唐山信息港 http://www.tsxxg.com冀ICP备16001780号-4
首页联系我们客服微信:14369595Comsenz Inc.