唐山冶金矿山机械厂A-01地块 A-02地块幼儿园项目公示
唐山信息港 发表于:2022-7-29 19:02 复制链接 看图 发表新帖
阅读数:5501

建设项目规划公示

(唐山冶金矿山机械厂A-01地块 A-02地块幼儿园项目)

50114417_1ce661a3-b00e-452d-8c00-0a280585b0decopy.jpg

50114417_a6108f96-0225-4368-9612-5f247a20a5f6copy.jpg

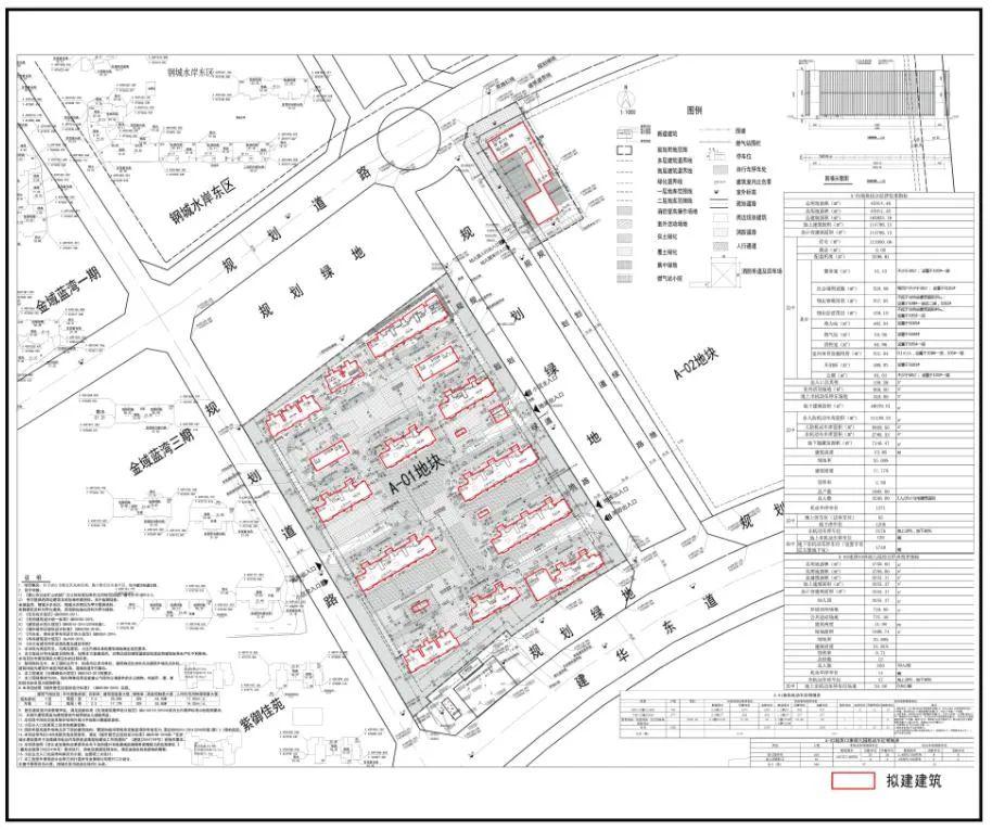
建设单位名称:唐山金隅盾石大成房地产开发有限公司

建设项目名称:

唐山冶金矿山机械厂A-01地块

唐山冶金矿山机械厂A-02地块幼儿园项目

建设项目位置:路北区缸窑路西侧、建华东道北侧

建设规模:

总建筑面积162825.76(A-01)㎡

3355.17(A-02幼儿园)㎡

地上建筑面积:

114786.15(A-01)㎡

3355.17(A-02幼儿园)㎡

地下建筑面积:

48039.61(A-01)㎡

0(A-02幼儿园)㎡

建设层数:

18(A-01)层

3(A-02幼儿园)层

建设高度:

53.85(A-01)米

11.9(A-02幼儿园)米

公示期:2022年7月28日至2022年8月7日

返回列表 使用道具 举报
条评论
您需要登录后才可以回帖 登录 | 立即注册
相关推荐
©2001-2021 唐山信息港 http://www.tsxxg.com冀ICP备16001780号-4
首页联系我们客服微信:14369595Comsenz Inc.