唐山第八幼儿园改扩建规划公示
唐山信息港 发表于:2023-3-8 21:50 复制链接 看图 发表新帖
阅读数:3202

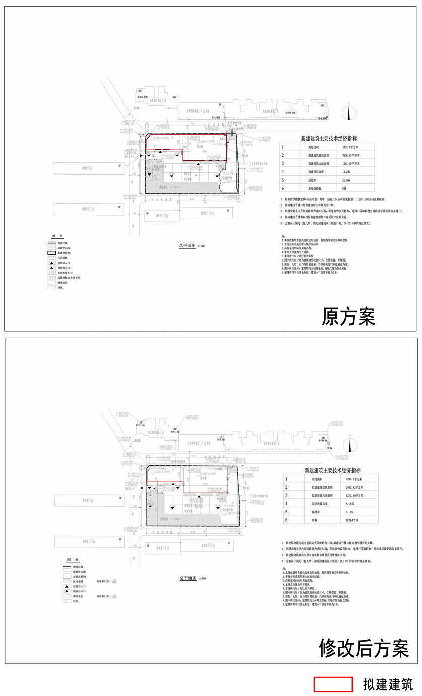
建设项目规划公示(唐山市路北区普惠幼儿园基础设施提升改造工程-唐山市路北区第八幼儿园改扩建综合楼)

50183970_00aad98d-3986-49a8-8eb1-a9fed04e0099copy.jpg

50183970_37125175-7a39-4325-a587-33ebb9665c4dcopy.jpg

50183970_49facbe9-cbb7-4cd6-97b4-ac8206eb9b73copy.jpg


来源: 中国唐山
返回列表 使用道具 举报
条评论
您需要登录后才可以回帖 登录 | 立即注册
相关推荐
©2001-2021 唐山信息港 http://www.tsxxg.com冀ICP备16001780号-4
首页联系我们客服微信:14369595Comsenz Inc.